Renovo Box Auto Projects
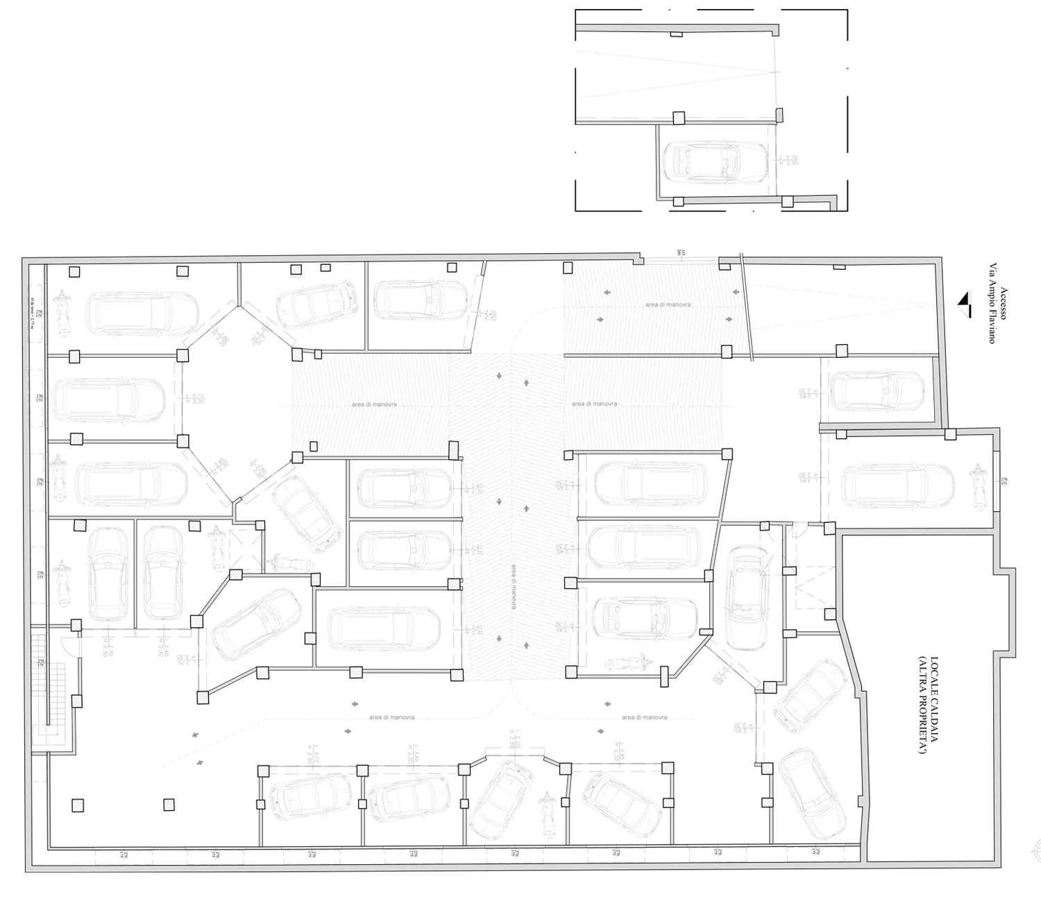
La nostra società, leader, che si occupa di rigenerazione urbana e trasformazione edilizie propone iniziative commerciali per la realizzazione di box auto di varia metratura.
La nostra società, leader, che si occupa di rigenerazione urbana e trasformazione edilizie propone iniziative commerciali per la realizzazione di box auto di varia metratura.