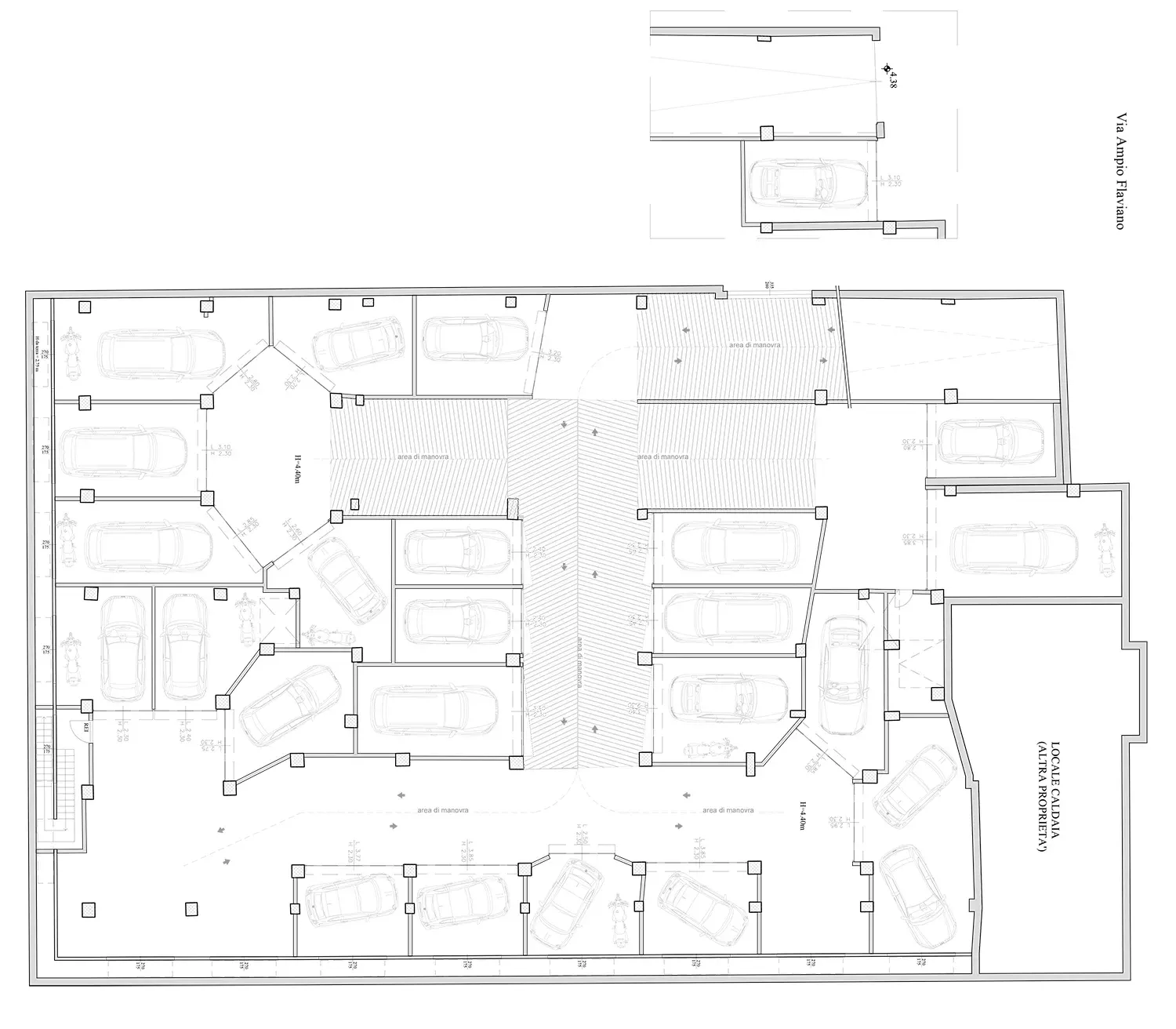
La nostra società, leader, che si occupa di rigenerazione urbana e trasformazione edilizie propone una nuova iniziativa commerciale in Via Ampio Flaviano 34 per la realizzazione di 24 box auto di varia metratura.
La nostra società, leader, che si occupa di rigenerazione urbana e trasformazione edilizie propone una nuova iniziativa commerciale in Via Ampio Flaviano 34 per la realizzazione di 24 box auto di varia metratura.