La nostra società, leader, che si occupa di rigenerazione urbana
e trasformazione edilizie propone una nuova iniziativa commerciale in
Via Curzio Rufo 16
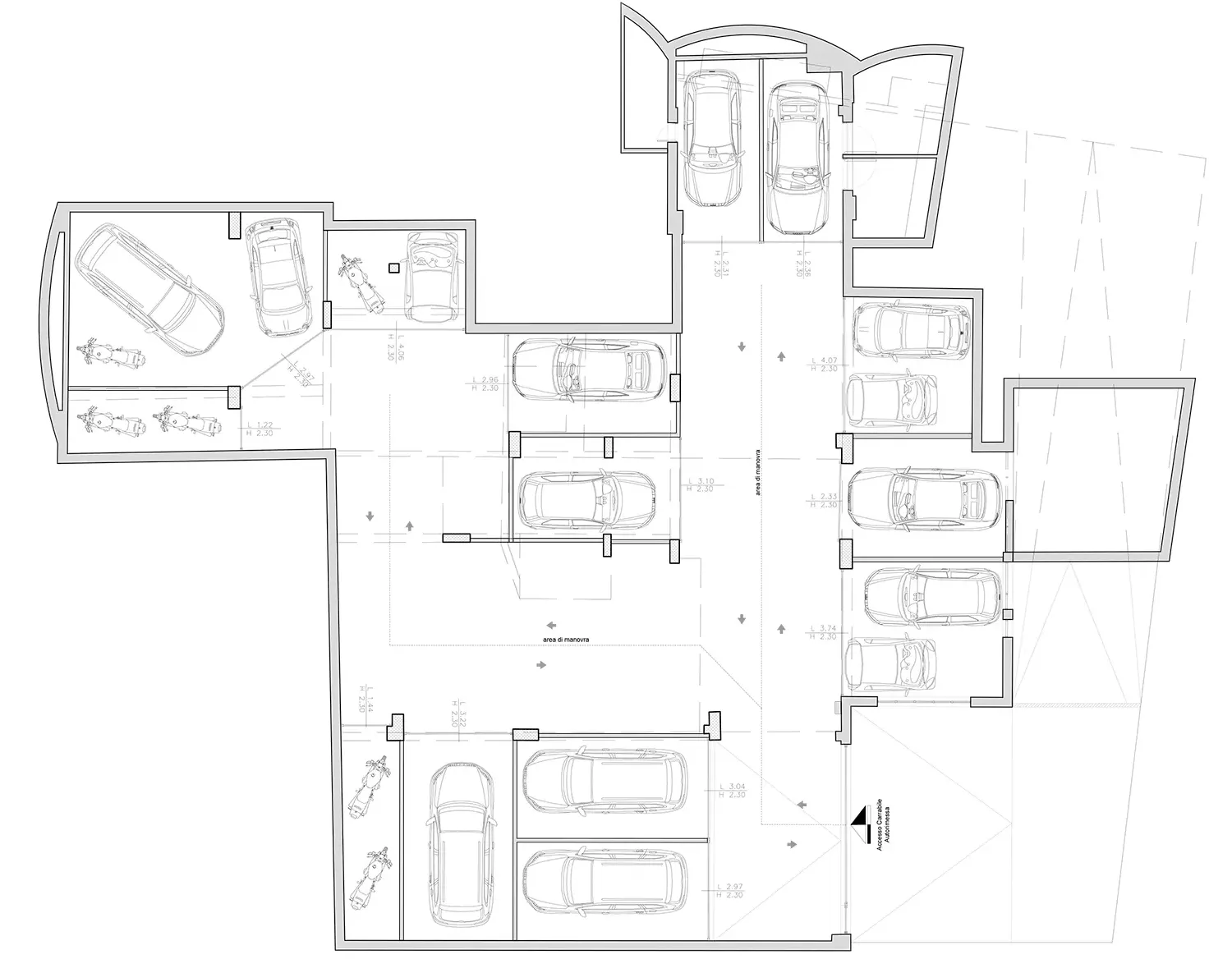
per la realizzazione di 14 box auto
di varia metratura.
Via Curzio Rufo 16
Dove siamo
Info dati tecnici
Cancello automatico
Predisposizione impianti per ricarica elettrica domestica