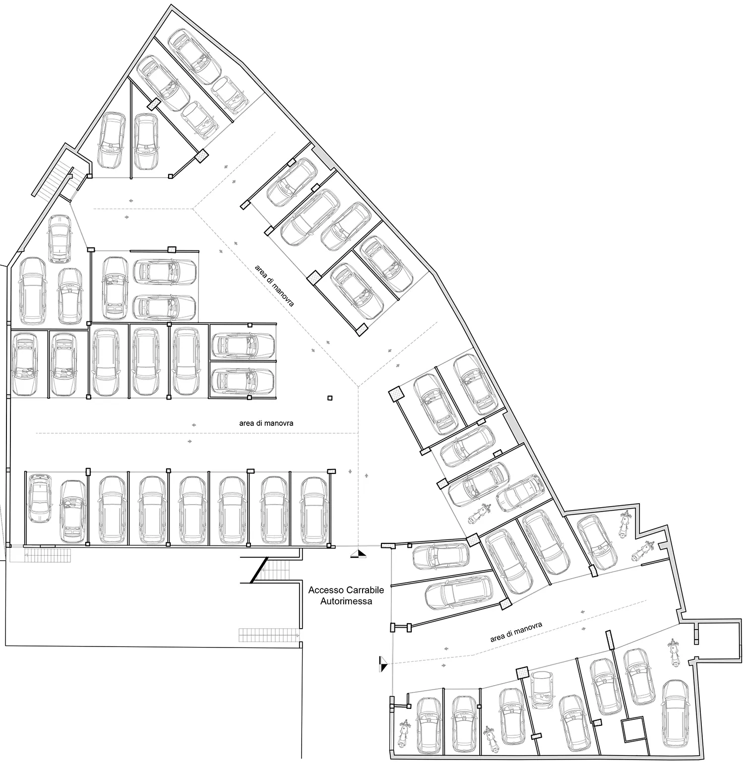
La nostra società, leader, che si occupa di rigenerazione urbana e trasformazione edilizie propone una nuova iniziativa commerciale in via Monte Cervialto 135 per la realizzazione di 41 box auto di varia metratura.
La nostra società, leader, che si occupa di rigenerazione urbana e trasformazione edilizie propone una nuova iniziativa commerciale in via Monte Cervialto 135 per la realizzazione di 41 box auto di varia metratura.